¡OCASIÓN ÚNICA!
🏡 Casa de lujo en exclusiva en Barcelona – Font d’En Fargues
Barcelona - REF. 1121

159 m2

150 m2

3

3
venta: 830.000 €
Descripción

✨ Una joya en la Font d’En Fargues – Barcelona ✨


🏡 Casa en venta en exclusiva


En una de las zonas residenciales más deseadas de Barcelona, se encuentra esta elegante vivienda adosada con carácter propio. Construida en 1920 y cuidadosamente reformada a lo largo de los años, combina el encanto de lo auténtico con la comodidad de lo moderno.


Un hogar luminoso, acogedor y con amplios espacios interiores y exteriores, pensado para familias que buscan más que una casa: un lugar donde vivir y disfrutar cada día.


🌿 Tu oasis privado en la ciudad


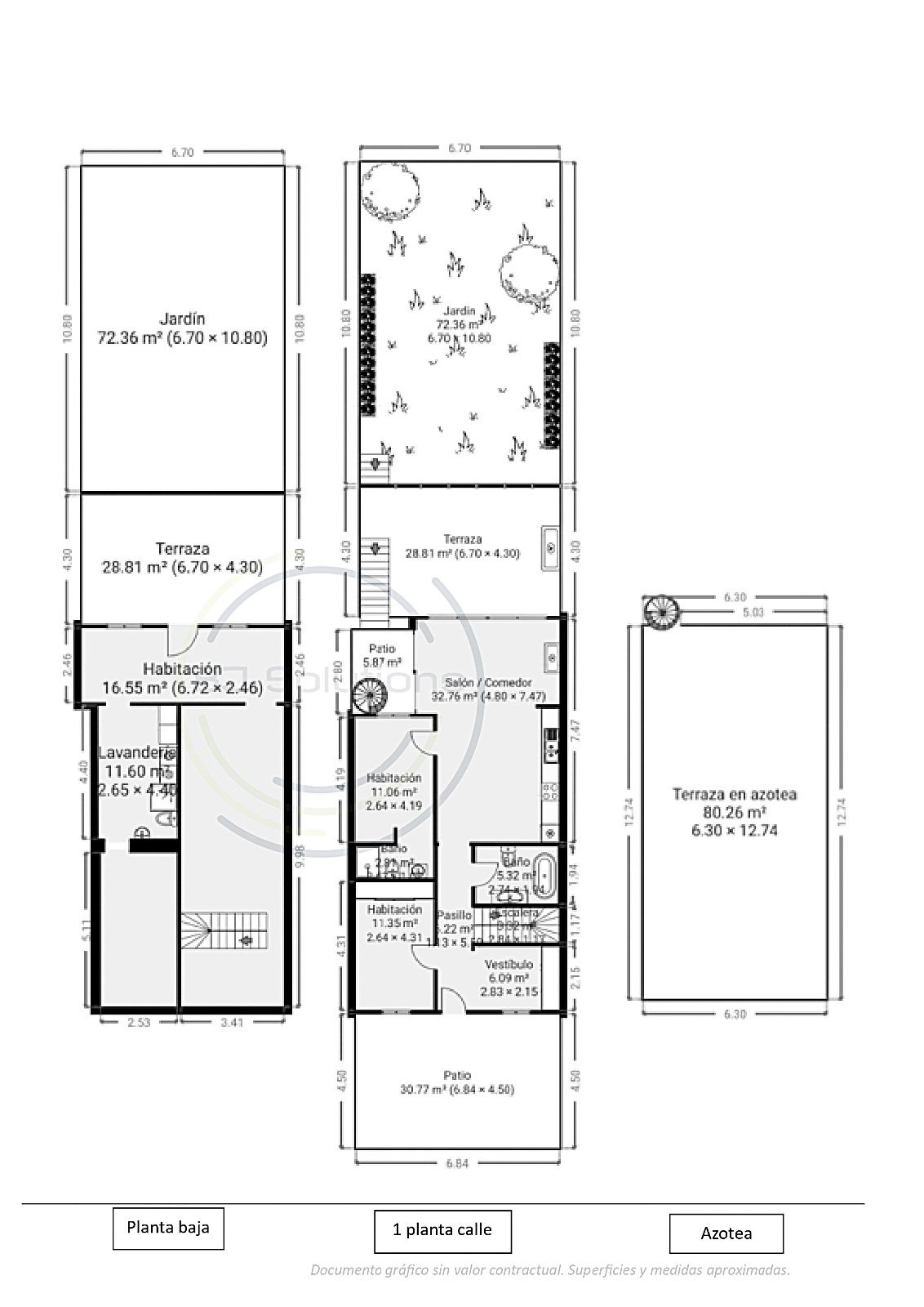
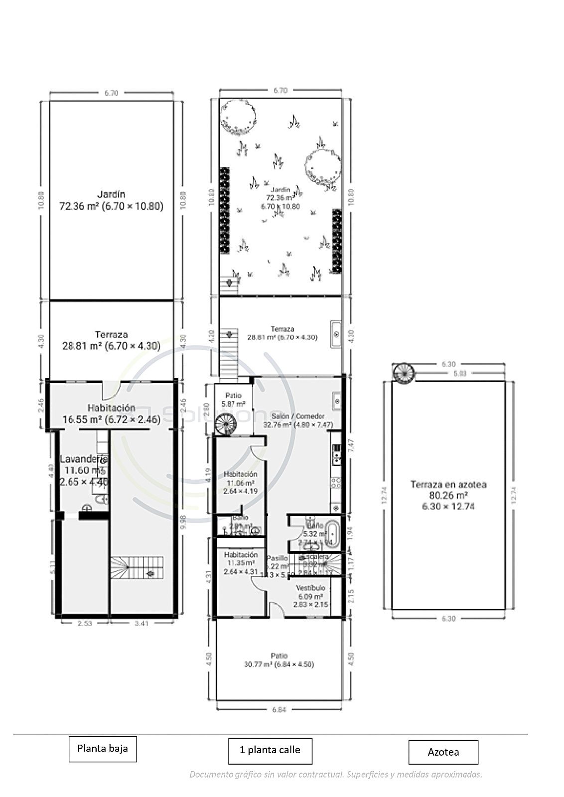
  • Jardín posterior de 73 m², con terraza de 30 m², barbacoa y una estancia independiente perfecta como estudio, zona de juegos o despacho.


  • Jardín delantero de 30 m², que da la bienvenida con encanto y frescura.


  • Espectacular terraza superior de 80 m², con vistas al Tibidabo y a la montaña: un espacio único para reuniones, celebraciones o simplemente relajarse.

🏡 Un interior lleno de vida


  • Salón con cocina abierta de 33 m², conectado directamente con el patio y el jardín.


  • Dormitorio en suite, dos dormitorios adicionales y tres baños completos.


  • Sala polivalente de 34 m² en planta inferior, actualmente utilizada como despacho, gimnasio y vestidor, lista para adaptarse a tus necesidades.


💎 Encanto y confort en cada detalle


La casa mantiene un estilo shabby chic y vintage, realzado con materiales de calidad y todas las comodidades modernas:

✔️ Aire acondicionado

✔️ Calefacción de gas por radiadores

✔️ Espacios versátiles para cada etapa de la vida familiar


🚗 Posibilidad de plaza de hacer aparcamiento en la vivienda.


✨ Una oportunidad única en Barcelona

Esta es tu ocasión para vivir en una casa con personalidad, amplitud y luz, en un entorno tranquilo y residencial, a un paso de la ciudad. Una vivienda con alma, lista para convertirse en tu nuevo hogar.


📌 Características principales:


  • Casa adosada reformada

  • 159 m² útiles

  • 3 dormitorios | 3 baños

  • Jardines y terrazas privadas (más de 120 m²)

  • Espacios polivalentes

  • Aire acondicionado y calefacción de gas

  • Vistas al Tibidabo


🌟 Las casas se compran con la razón, pero esta se elige con el corazón.

Si sientes que este puede ser tu hogar, contáctame: Begoña Jiménez – 607 618 229

Características
Precio Venta 830.000 €
Año de construcción 1920
Construidos 159 m2
Parcela 242 m2
Precio/m² 5.220
Jardín 73 m2
Dormitorios 3
Baños 3
Cocina Amueblada
Calefacción Gas ciudad
Trastero
Terraza
Estado Muy buen estado
Tipo de suelo Parqué
Aire acondicionado
Calificación Energética (E) VER
Luz
Gas
Agua
Vídeos
Escalas de eficiencia


Eficiencia Emisiones: 34,00
Eficiencia Consumo: 164,00
164
34

Tu agente
Begoña Jiménez
Contáctanos

Si deseas más información sobre esta propiedad, por favor, rellena el formulario.

 Sí, he leído y/o acepto las Condiciones de uso y la Política de privacidad