Ficha
RESERVADO
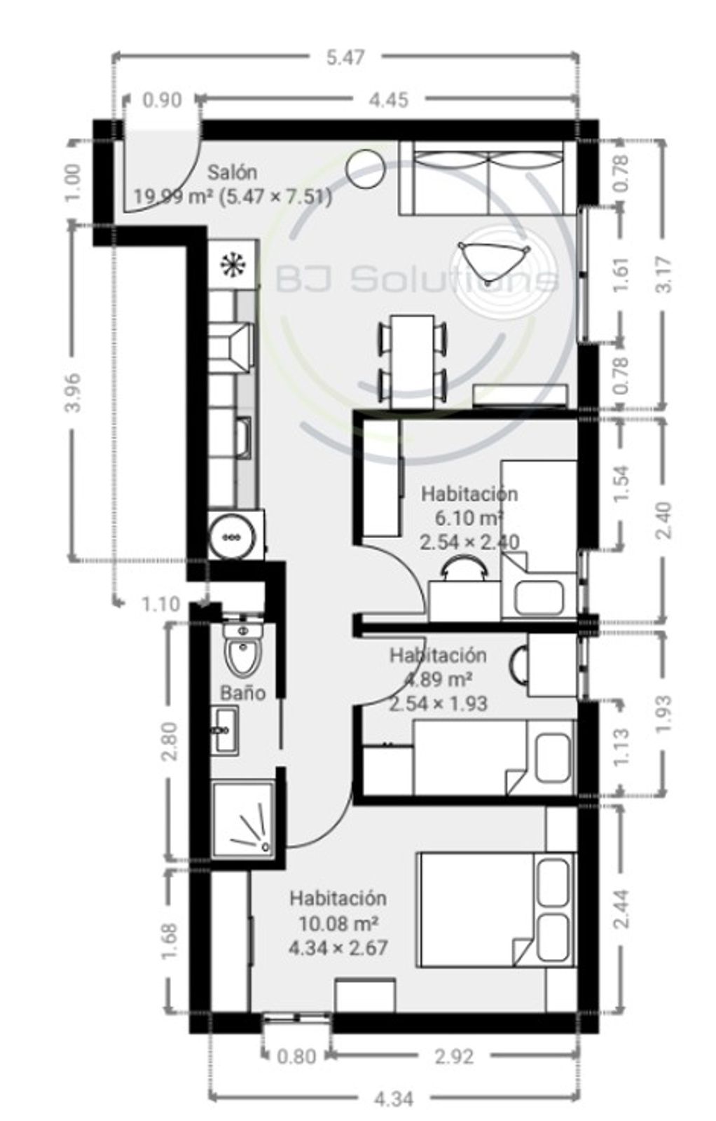
Planta baja reformada de 53 m² en Sant Martí – 3 habitaciones y cerca de la playa
Barcelona - REF. 1101

53 m2

3

1
venta: 155.000 €
Descripción

¡Piso reformado a estrenar en planta baja con luz natural y a pasos de la playa en Sant Martí!


Te presentamos esta magnífica oportunidad de vivir en uno de los barrios más dinámicos y con mayor proyección de Barcelona: Sant Martí, uno de los pocos distritos que combina vida urbana con acceso directo a la playa. Ideal para familias que buscan comodidad, calidad y ubicación.


🏡 Vivienda exterior con luz natural todo el día

Este piso, situado en planta baja de una finca residencial, cuenta con excelente orientación y grandes entradas de luz natural, que crean un ambiente cálido, agradable y eficiente energéticamente durante todo el año.


🛏 Distribución cómoda y funcional

Dispone de tres habitaciones, un baño completo y una amplia zona abierta que integra salón y cocina, diseñada para fomentar la vida familiar y el aprovechamiento del espacio. Además, incluye una zona de lavandería independiente, pensada para hacer más práctico tu día a día.


✨ Reforma integral en curso: ¡estrena tu nuevo hogar!

La vivienda se entregará completamente reformada con acabados de calidad media-alta. Se han renovado las instalaciones de electricidad y fontanería según normativa vigente.


  • Carpintería de aluminio con doble acristalamiento y rotura de puente térmico
  • Pavimentos y acabados elegidos con diseño actual y materiales duraderos
  • Aire acondicionado frío/calor en todas las estancias


🔒 Seguridad y confort

Instalación de sistema de alarma y puerta blindada


🌊 Vive cerca del mar, sin renunciar a nada

A escasos minutos de la playa y con todo tipo de servicios, colegios y comercios en la zona.

Muy bien comunicado, a pocos metros de la parada de metro Besòs Mar (L4).


✅ Listo para entrar a vivir, sin reformas ni sorpresas

Una propiedad perfecta para quien busca una vivienda lista para disfrutar desde el primer día, con todo nuevo y sin necesidad de invertir más.


🎯 ¡ATENCIÓN! Ahora mismo se está finalizando la obra, por lo que es el momento perfecto para reservarlo antes de que salga oficialmente al mercado.

Asegura ya tu futuro hogar y no dejes escapar esta oportunidad única de vivir junto al mar en Barcelona.


📞 ¿Te interesa? Contacta directamente conmigo, Begoña Jiménez, al 607 618 229 y coordinamos una visita.

Características
Precio Venta 155.000 €
Año de construcción 1960
Construidos 53 m2
Precio/m² 2.925
Dormitorios 3
Baños 1
Cocina Amueblada
Calefacción Aire acondicionado
2ª línea de playa
Tipo de suelo Gres
Aire acondicionado
Calificación Energética (D) VER
Luz
Agua
Alarma interior
Escalas de eficiencia


Eficiencia Emisiones: 39,00
Eficiencia Consumo: 86,00
86
39

Tu agente
Begoña Jiménez
Contáctanos

Si deseas más información sobre esta propiedad, por favor, rellena el formulario.

 Sí, he leído y/o acepto las Condiciones de uso y la Política de privacidad
Inmuebles similares:
 
125.000 €
Ref. 1092  87 m2  3  3

Piso de 87 m² en Blanes, 3º sin ascensor, 3 habitaciones, 2 baños, balcón con vistas a la montaña. Exterior, luminoso, a reformar. A 5 min de la playa, junto a zona comercial. Contrato de alquiler vencido. Ideal familias, segunda residencia o inversión.

📞 Begoña Jiménez – 607 618 229

 
150.000 €
Ref. 1002  65 m2  2  2
Piso en venta en Pineda de Mar, con 65 m2, 2 habitaciones y 2 baños, Ascensor y Aire acondicionado.